Voir le bien

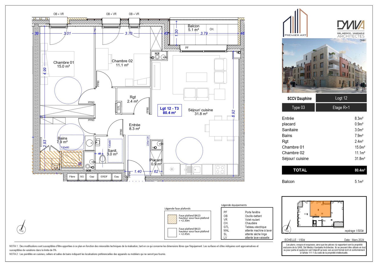
Dunkerque
(59240)
3 pièces - 82 m²
Appartement Neuf de Standing (Type 3) au coeur de Malo-Les-Bains
378 662 €
Ref : 2025-15
Voir le bien