Voir le bien

Dunkerque
(59240)
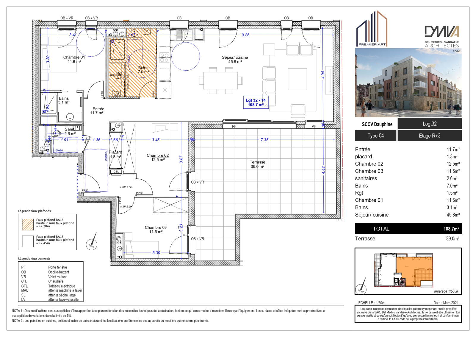
4 pièces - 128 m²
Appartement Neuf de Standing (Type 4) au coeur de Malo-Les-Bains
759 534 €
Ref : 2025-11
Voir le bien